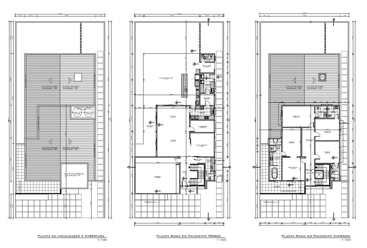
Projeto residencial em parceria com o arquiteto Diego Domaradzki para casal com trigêmeos pequemos, em cidade do interior de São Paulo. Projeto: MM Arquiteto & Diego Domaradzk