PROJETOS
ARCHVIZ
CONTATO
MM ARQUITETO & ARCHVIZ
PROJETOS
ARCHVIZ
CONTATO

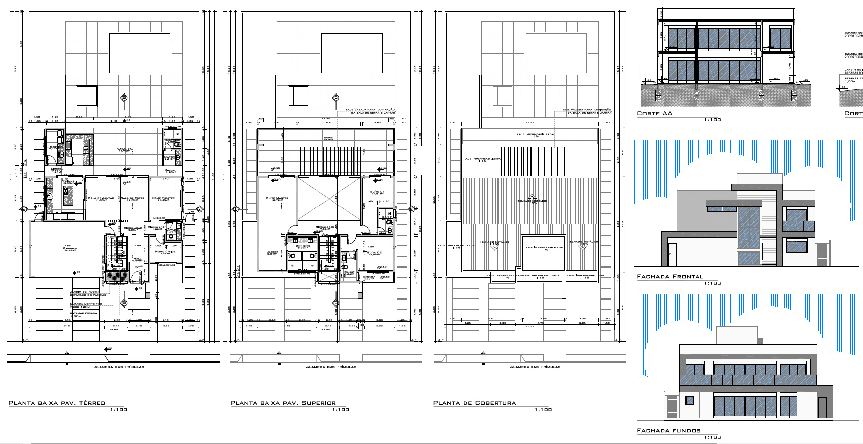
CASA CTP

Projeto Residencial elaborado pela MM Arquiteto para residencial em Jaguariúna/ SP Área: 380,00m²

VEJA TAMBÉM...

FRANCO ADV
APTO. FLHR
CASA PDR
CONDOMÍNIO PJB
CASA FLV
BR AUTOPARTS - VITÓRIA
BR AUTOPARTS - JOÃO PESSOA
MILARE ADV
BR AUTOPARTS - VARGINHA
AL PAIRO
↑Back to Top
MM ARQUITETO & ARCHVIZ - MARTÍN OLIVEIRA MEGA ARQUITETURA