PROJETOS
ARCHVIZ
CONTATO
PROJETOS
ARCHVIZ
CONTATO
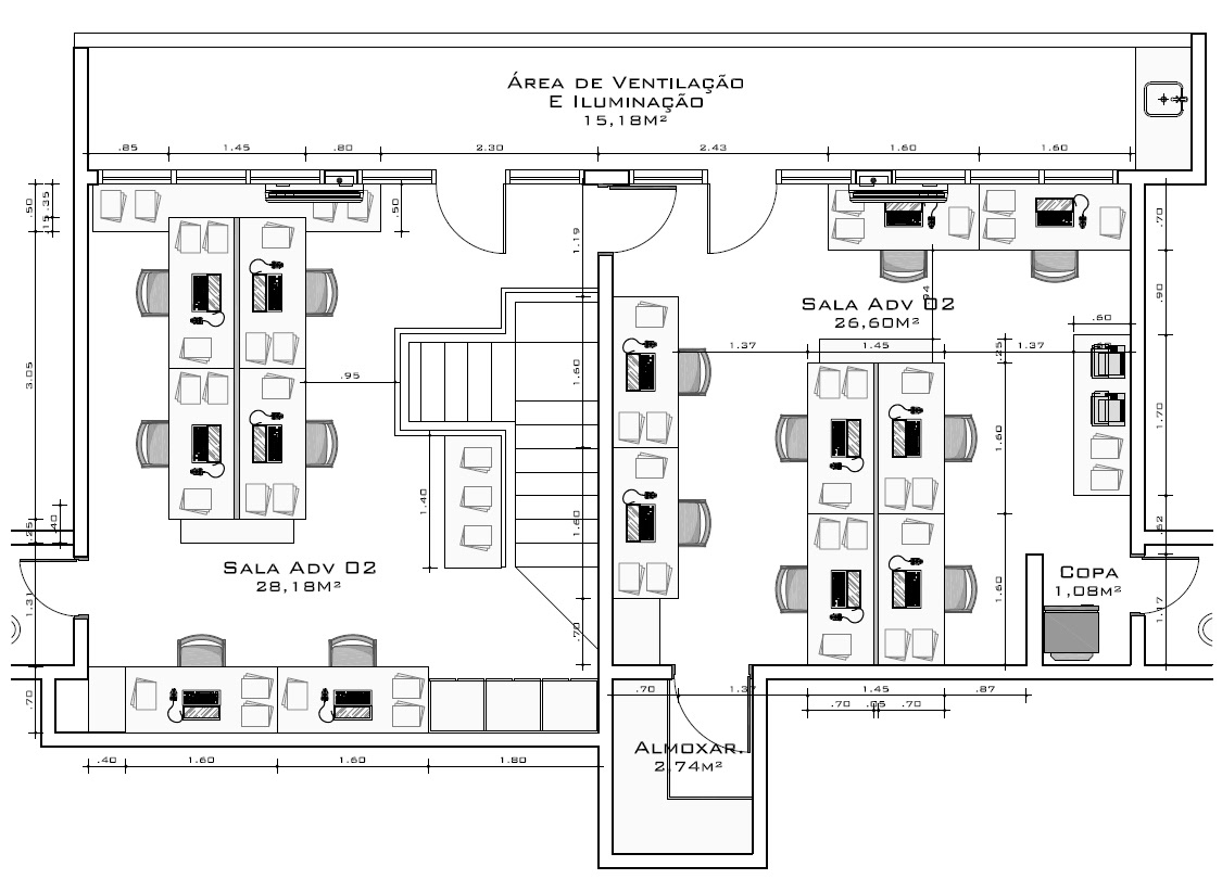
MILARE ADV
Estudo de Layout e mobiliário para mezanino da Milaré ADV em São Paulo/SP. PROJETO: MM Arquiteto
VEJA TAMBÉM...
APTO. FLHR
BR AUTOPARTS - VARGINHA
CASA CTP
SOBRADO RSBR
HOME OFFICE NOM
MONTE BRAVO SP
AL PAIRO
CONDOMÍNIO PJB
CAIXA AQUI POSSE
CASA FLV
↑
Back to Top