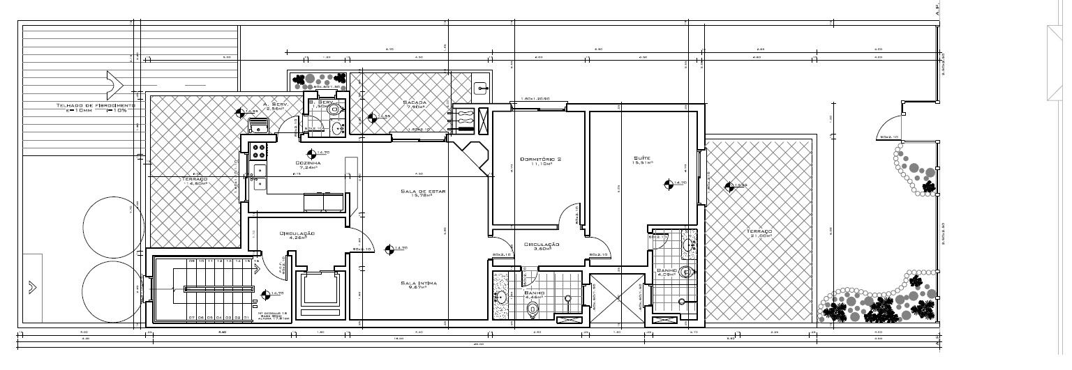
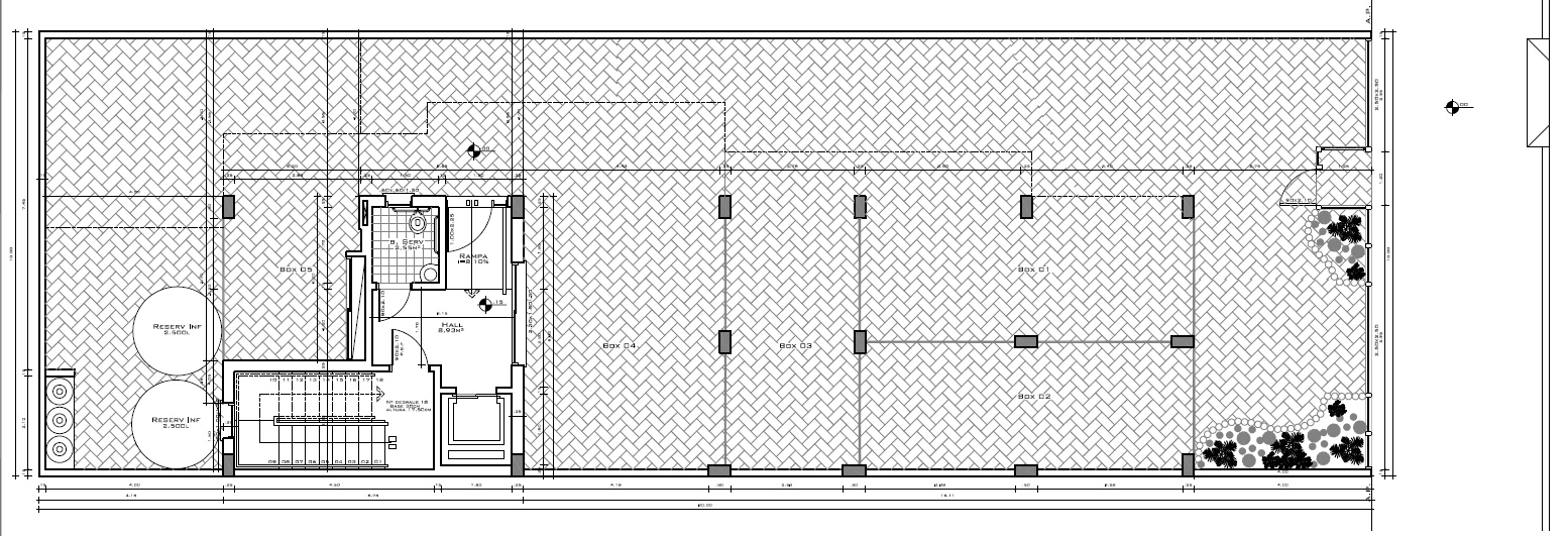
Primeiro projeto depois de formado, edifício residencial de 6 andares (pilotis + 4tipos + Cobertura) na cidade de Pelotas/RS. PROJETO: MM Arquiteto